BA . WS 22/23 . Landfeuerwehr

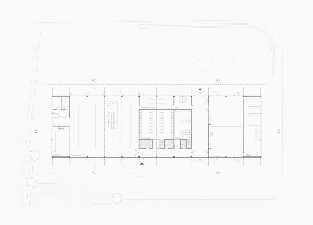
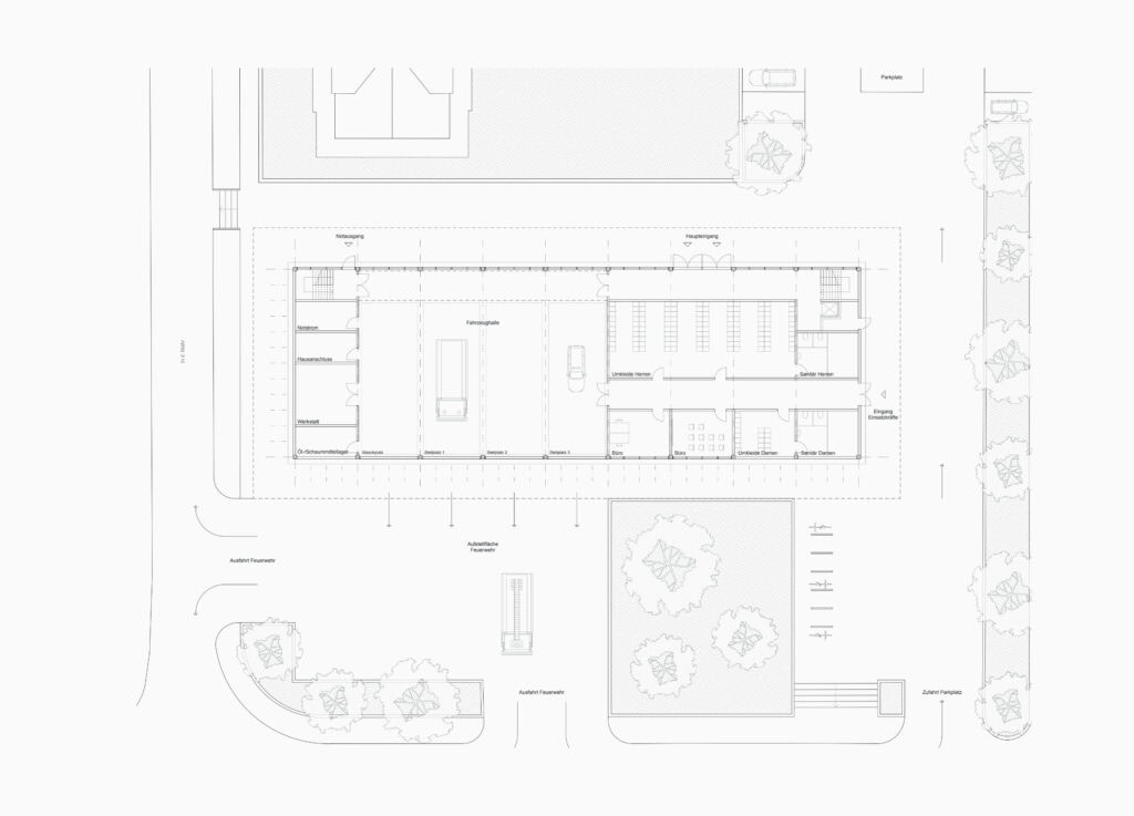
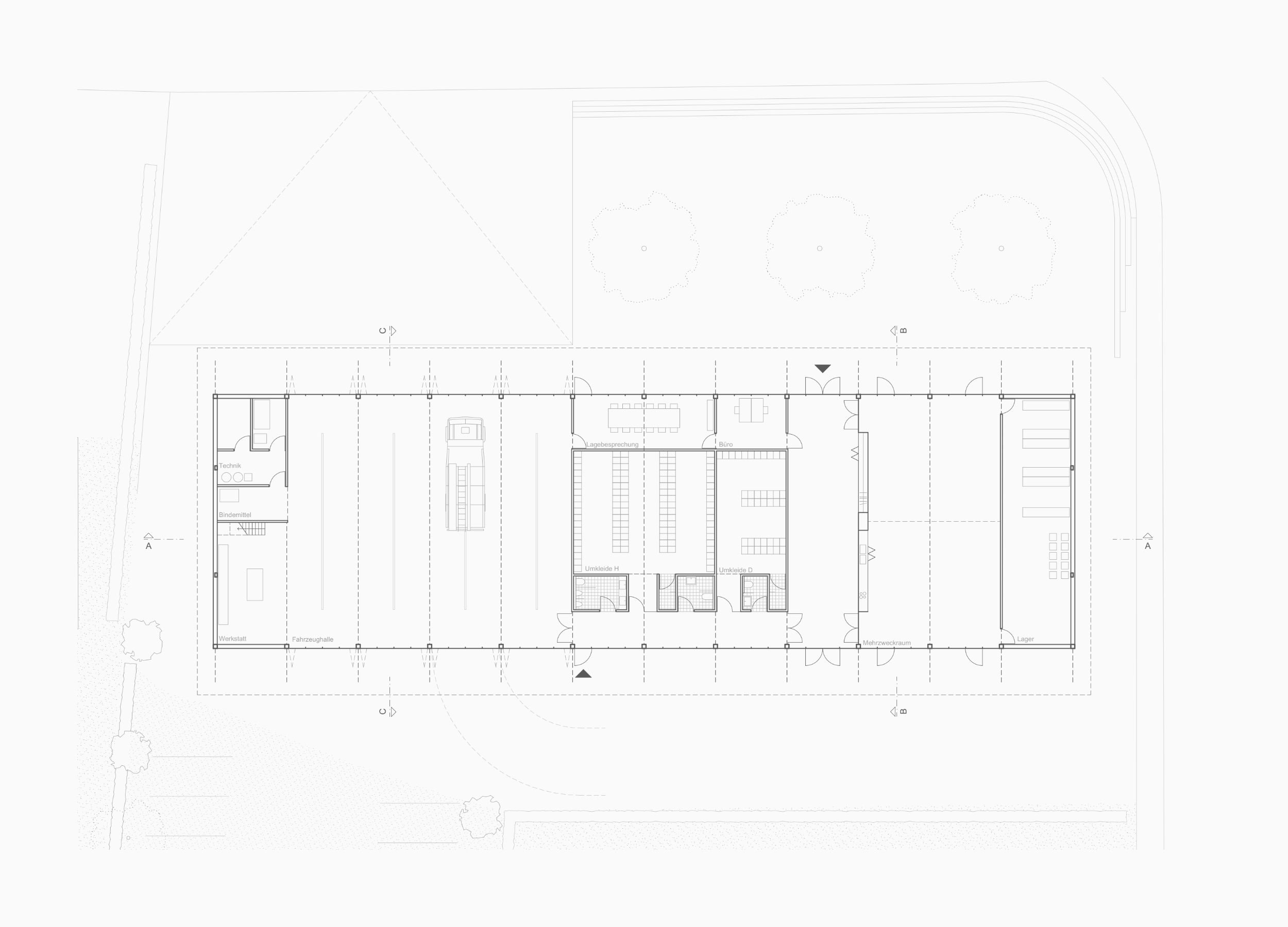
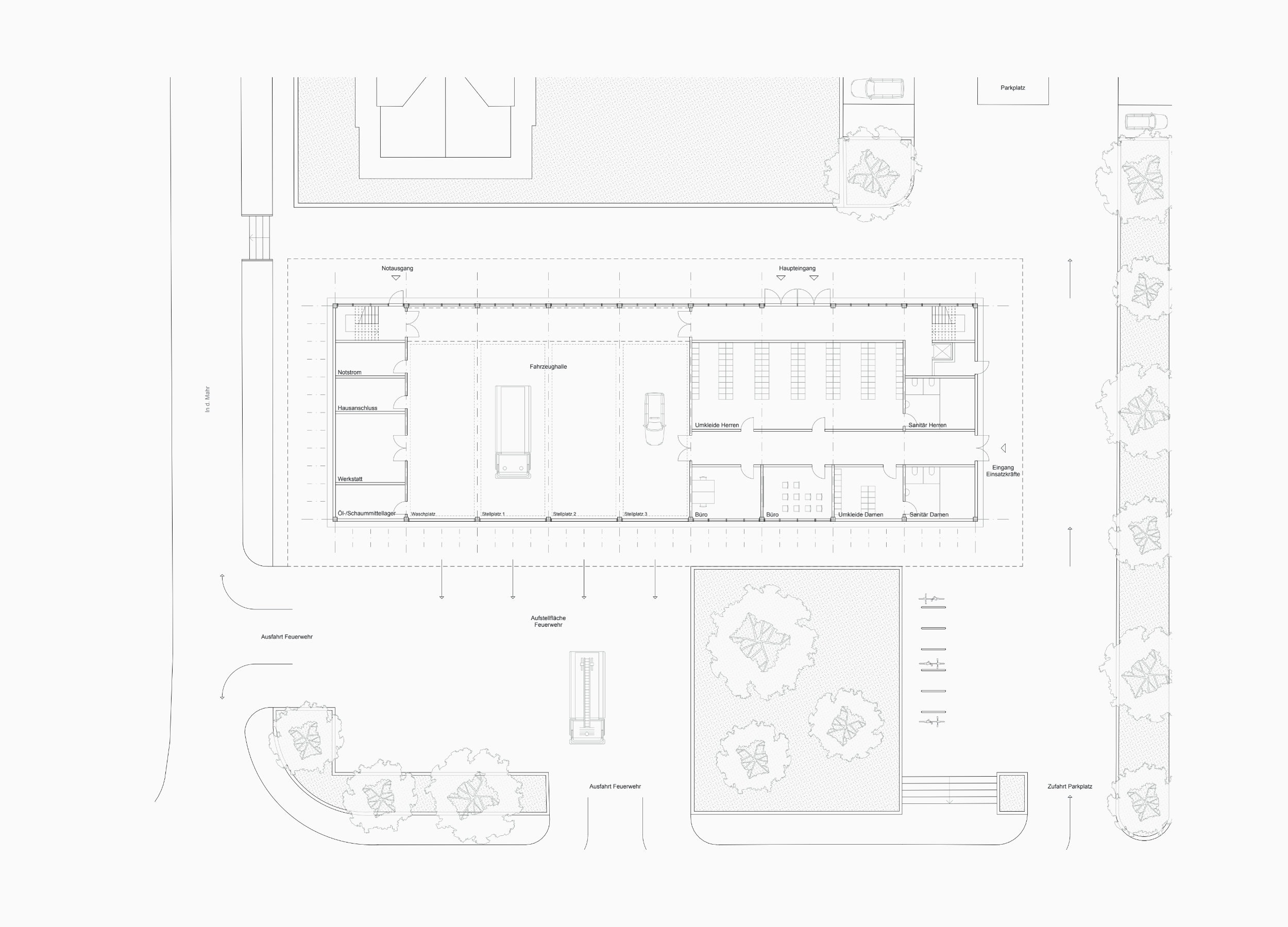
Auf dem Gelände an der Hauptstraße soll ein Neubau für das Geräte- und Vereinshaus der Freiwilligen Feuerwehr Simmerath entstehen. Neben der funktionalen Unterbringung der Geräte und Fahrzeuge sowie der Erfüllung der räumlichen Anforderungen soll der Neubau auch eine städtebauliche Aufwertung entlang der Hauptverkehrsachse in Simmerath leisten. Die Aufgabe stellt dabei insbesondere die Frage nach der angemessenen Einfügung eines solchen Gebäudes an der Schnittstelle zwischen Gemeindegebiet und Landschaft im ländlich geprägten Kontext. Aufgrund des Bauvolumens und der Bedeutung des Vereins für den Ort ist eine besonders sensible Einbindung in das Umfeld erforderlich. Die architektonische Qualität des Gebäudes soll der sozialen Bedeutung des Vereins für das Gemeinwesen entsprechen und als teilöffentliche Einrichtung auf funktionaler und räumlicher Ebene eine starke Verbundenheit zwischen dem Ort und dem Verein zum Ausdruck bringen.
[Foto: https://rotstahl.de/pdf/rotstahl-feuerwehrspinde.pdf]
Ausgewählte Arbeiten:
Lehrpersonen:
Prof. Hartwig Schneider
Prof. em. Mirko Baum
Carolin Harland
Jan Michel Hintzen
Christian Schätzke























