BA/FE . SS 24 . hoch.verdichtet

Nutzungsmischung, 15-Minuten-Stadt und Urbane Produktion sind nur einige von vielen Schlagworten, die beschreiben, wie wir uns Städte heute wünschen, nämlich als ein vielfältiges Gemisch aus unterschiedlichsten Nutzungen und Aktivitäten bei gleichzeitiger räumlicher Nähe. Während dieser Gegenentwurf zur funktionsgetrennten Stadt der Moderne in vielen Bereichen der Stadt- und Quartierentwicklung zum Leitbild geworden ist, sind Universitäts- und Wissensquartiere bislang von diesen Entwicklungen weitgehend unberührt geblieben. So ist es beispielsweise in Nordrhein- Westfalen nicht möglich, auf Hochschulgelände studentisches Wohnen zu etablieren. Dies führt selbst bei so zentrumsnah gelegenen Universitätsbereichen wie dem Campus Innenstadt der RWTH Aachen zu einer typischen Tag-Nacht-Belegung des Quartiers. Die Durchmischung der Hochschulnutzungen mit dem Wohnen fehlt, so dass der Bereich um das Hauptgebäude, Karman-Auditorium, Wüllnerstraße bis hin zum Republikplatz nachts wie ausgestorben wirkt. Gleichzeitig fehlt es in allen größeren Universitätsstädten an bezahlbarem Wohnraum für Studierende.
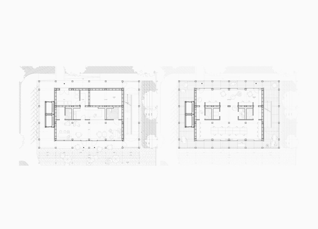
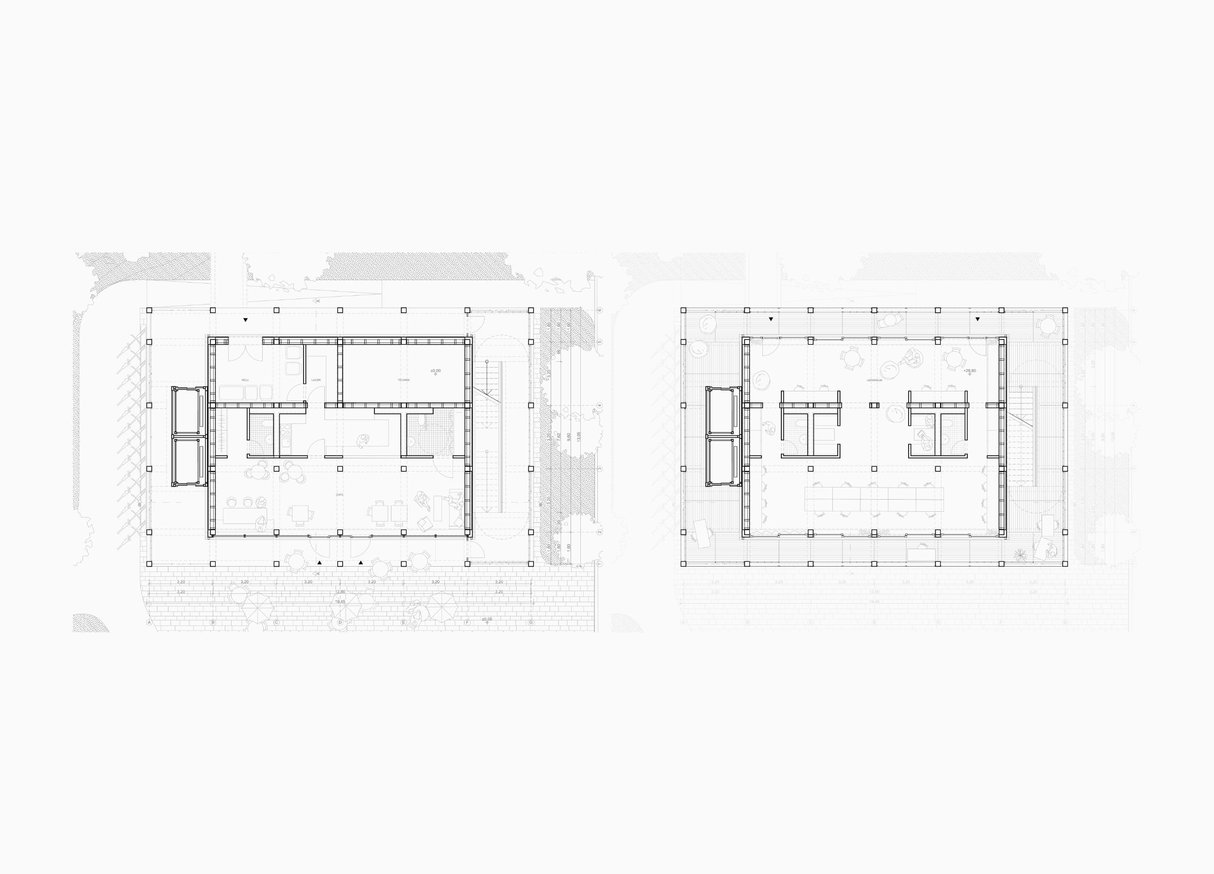
Im Rahmen des Projekts soll untersucht werden, wie studentisches Wohnen auf dem Campus Innenstadt der RWTH integriert werden kann. Da das Angebot an freien, bebaubaren Flächen hier sehr klein ist, besteht der Zwang, in die Höhe zu bauen. Auf ausgewählten Flächen des Campus Innenstadt sollen daher schlanke Wohnhochhäuser auf minimalem Footprint entwickelt werden. Dabei sind Fragen des individuellen Flächenanspruchs (Minimalwohnen) ebenso zu untersuchen wie Aspekte des Gemeinschaftlichen und der Interaktion mit dem öffentlichen Raum.
Daneben spielen strukturelle und konstruktive Aspekte und deren Auswirkungen auf den Ausdruck des Gebäudes eine wesentliche Rolle bei der Bearbeitung des Projekts. Extrem platzsparende, gestapelte Nutzungen mit großer Höhe erfordern in der Regel eine intensive Auseinandersetzung mit Aspekten der vertikalen und horizontalen Lastabtragung. Hinzu kommen Fragen der effizienten Vertikalerschließung und auf der konstruktiven Ebene Fragen des Materialverbrauchs und der intelligenten, kreislaufgerechten Fügung von Bauteilen. Hinsichtlich Material und Bauweise gibt es keine Einschränkungen.
[Foto: Cecchini, Giovanni, and Enzo Carli. San Gimignano / notizie storiche di Giovanni Cecchini. Commento artistico di Enzo Carli. Milano: Electa, 1962. Print.]

Das Campus-Areal der RWTH Aachen setzt sich aus insgesamt drei Hochschulbereichen zusammen. Dem Campus Melaten, dem Campus West und dem Campus Mitte. Der Campus Mitte ist der älteste Hochschulbereich und in seinem „Kernbereich“ umfasst er das Gebiet in unmittelbarer Nähe zum Hauptgebäude. Durch die besondere Lage zwischen Graben- und Alleenring sowie die direkte Nähe zur historischen Innenstadt ist dieser Bereich ein wichtiger Baustein der Aachener Stadtentwicklung mit zahlreichen Verknüpfungen. Baulich grenzt sich der Campus jedoch stark von der geschlossenen Bauweise der historischen Innenstadt ab. Das Areal wird geprägt von Solitärbauten und entsprechenden Freiflächen, die sich in dieser Art und Häufigkeit nur hier finden.
Um den Campus sowohl baulich als auch funktional stärker mit der Innenstadt zu verweben, wurden für die Bearbeitung der Aufgabe vier Grundstücke innerhalb des Kernbereichs ausgewählt.
Ausgewählte Arbeiten Bachelorthesis:
Ausgewählte Arbeiten Freier Entwurf:
Lehrpersonen:
Prof. Hartwig Schneider
Prof. Florian Fischer-Almannai
Dr. Carsten Eiden
Dr. Christian Schätzke
Sophie Schulten
Dipl.-Ing. Jan Michel Hintzen
Roman Krükel
Clemens Delheid
Katharina Schrader













































