hand.werk.haus
Baukonstruktion 1b
2. Semester SoSe 2024

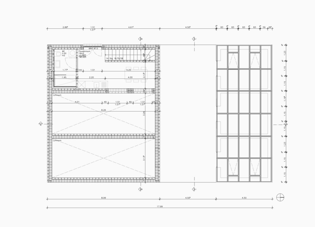
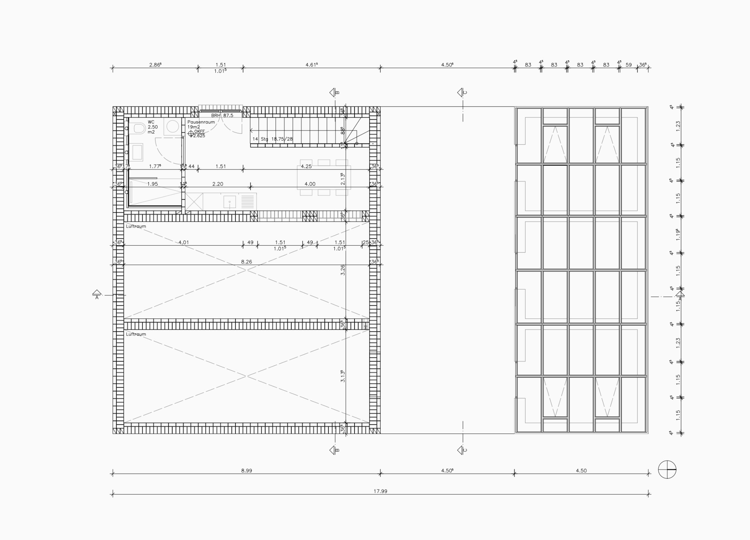
Für verschiedene Handwerksberufe soll je ein Haus als Teil einer größeren Siedlungsstruktur geplant werden. Der Ort wird dabei stark von den äußeren Rahmenbedingungen bestimmt. Dazu gehören neben der Parzellengröße, der Ausrichtung und Erschließungslogik auch formale und konstruktive Vorgaben, die darauf abzielen trotz großer Varianz bei den einzelnen Gebäuden eine gewisse Einheitlichkeit innerhalb der Gesamtstruktur zu erreichen. Jede Parzelle wird mit einem anderen Handwerksberuf belegt. Um das Gebiet zu einem lebendigen Quartier werden zu lassen, ist ein Teil der Programmfläche mit Kontakt zur Fußgängerstraße zu planen und kann sich zum Beispiel in Form eines Innenhofes oder eines Schaufensters öffnen. Für jedes Projekt steht die gleiche, rechteckige Parzelle in den Abmessungen 10,99 m x 17,99 m zur Verfügung. Die begleitenden Erschließungsstraßen liegen an den Längsseiten der Parzellen.
Ausgewählte Arbeiten:





















