work in progress
Online-Ausstellung zur Integrierten Projektarbeit – come together
Sommersemester 2024

Lehrstuhl Baukonstruktion, Univ.-Prof. Dipl.-Ing. Hartwig Schneider
Lehrstuhl Tragkonstruktionen, Univ.-Prof. Dr.-Ing. Martin Trautz
Lehrstuhl Gebäudetechnologie, Dr.-Ing. Daniele Santucci
RWTH Aachen University
Aufgabe
Der Campus Mitte der RWTH Aachen grenzt unmittelbar an die Aachener Kernstadt und ist gut in das städtische Umfeld integriert. Er beherbergt viele Fakultäten, zahlreiche Forschungseinrichtungen, Labore, Hörsäle und Seminarräume sowie Bibliotheken und Sportstätten. Inmitten dieses vielfältigen Stadtraums soll auf dem Campus ein zentraler Ort der Zusammenkunft geschaffen werden. Ein Ort, der den Mitgliedern der RWTH, insbesondere den Studierenden, Platz zum Lernen und Arbeiten bietet und informelle Treffen ermöglicht. Durch den neuen Versammlungsort werden nicht nur die Bibliotheken und Lernräume entlastet, sondern auch das Freizeit- und Aufenthaltsangebot der RWTH verbessert.
Ein kennzeichnendes Merkmal der griechischen Polis ist die Agora, ein zentraler Platz in einer Stadt, der als politischer und sozialer Treffpunkt diente. Durch die Architekturgeschichte hat sich dieser Typus als öffentlicher Platz oder Versammlungsbereich etabliert, der als sozialer Knotenpunkt dient. Im Kontext der RWTH Aachen kann der Begriff „Agora“ auf einen zentralen Bereich oder Platz auf dem Campus verweisen, der als Treffpunkt für Studierende und Mitarbeiter dient. Dieser Ort soll als Ort für Veranstaltungen, soziale Interaktionen und kulturelle Aktivitäten konzipiert werden.
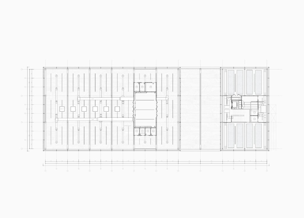
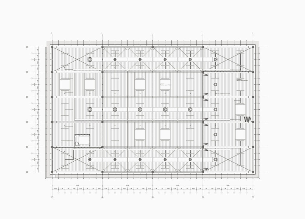
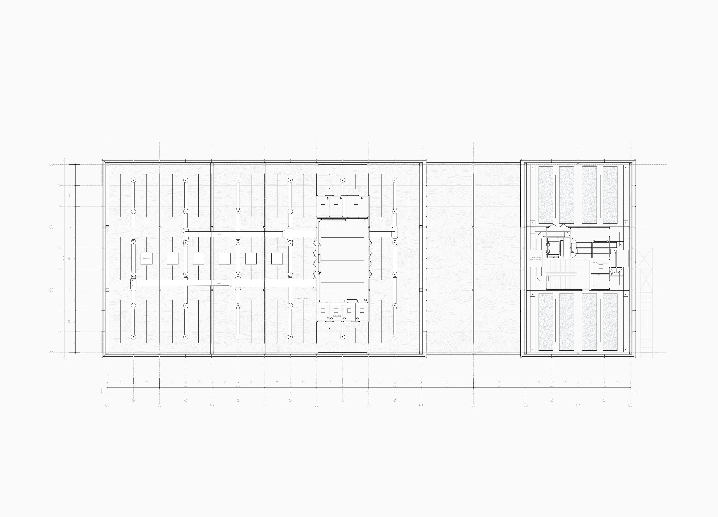
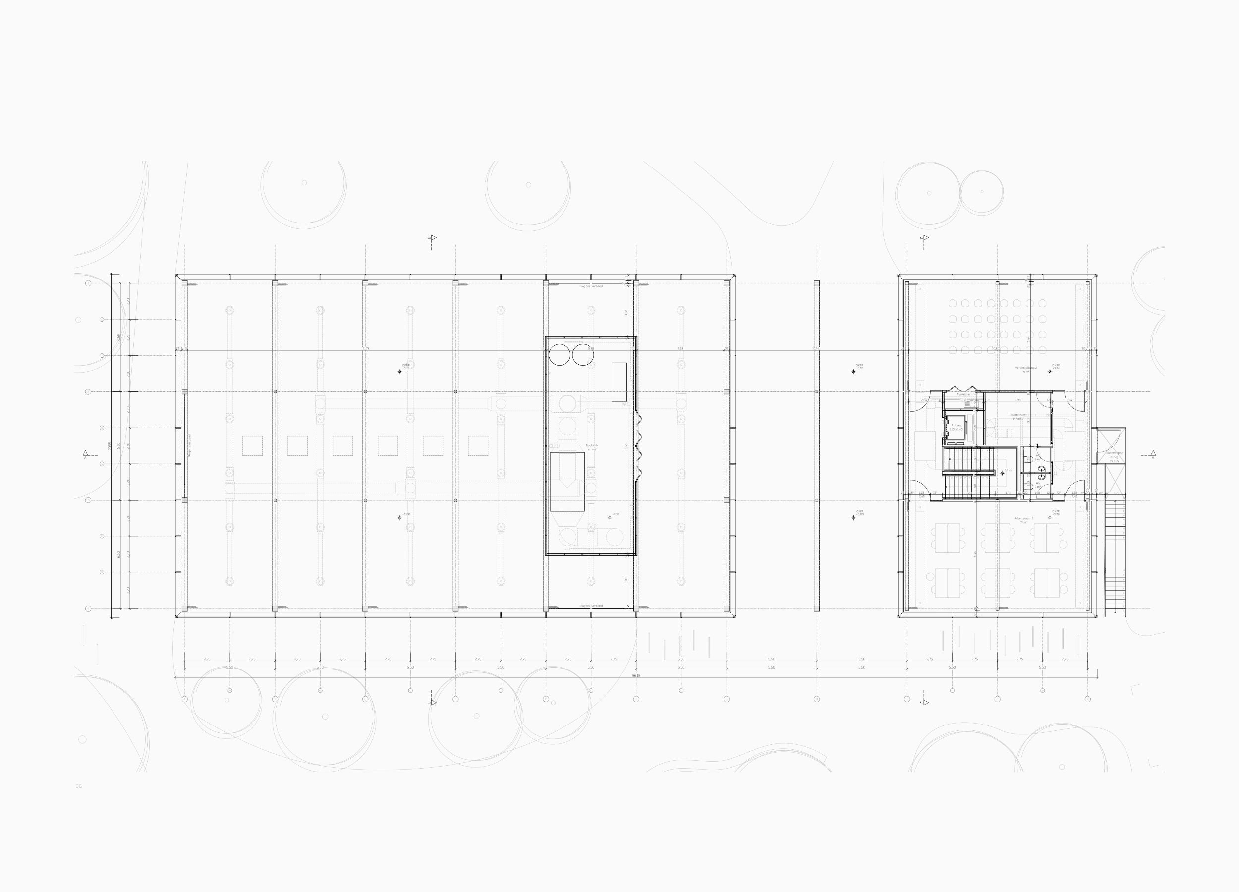
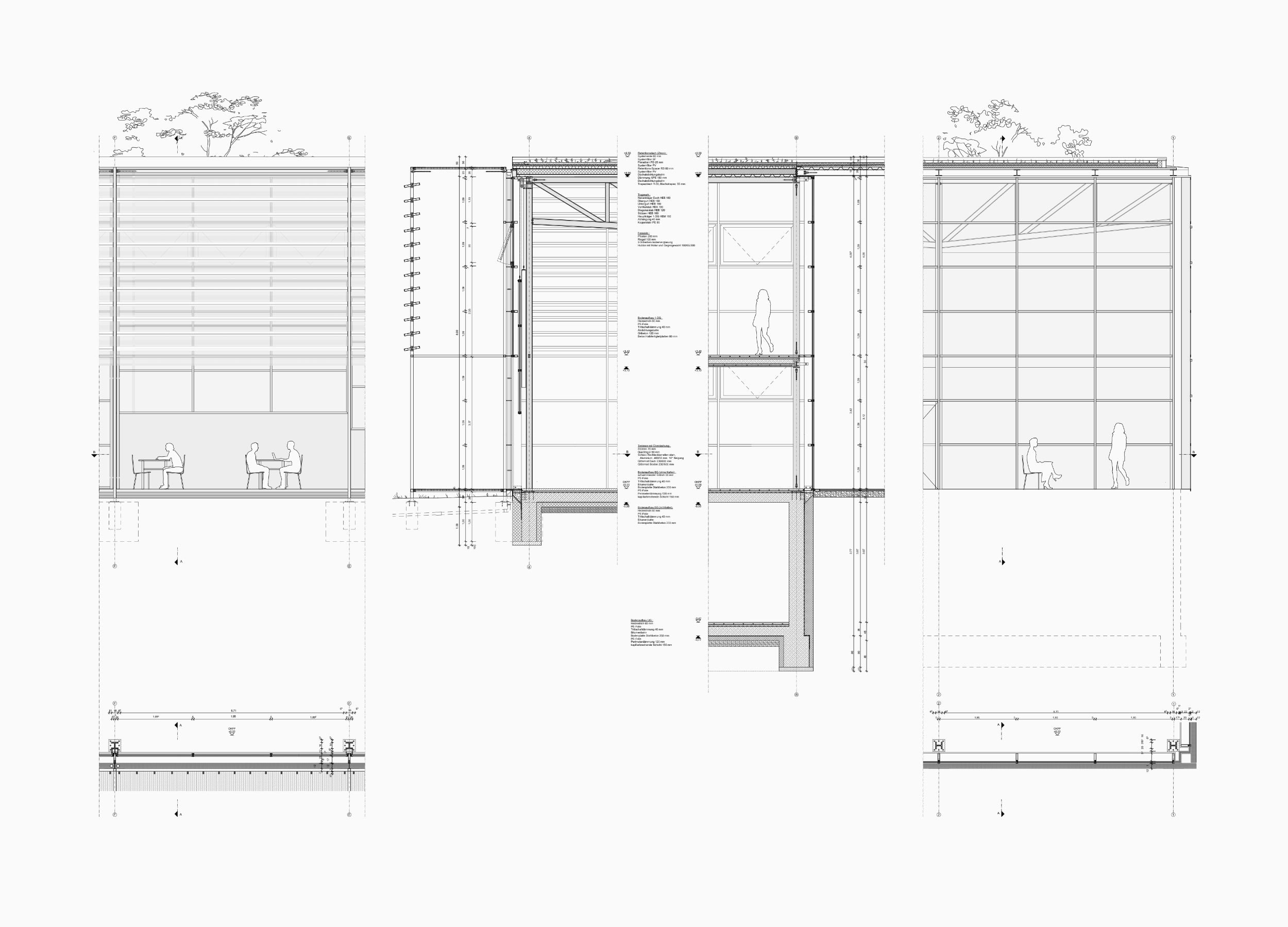
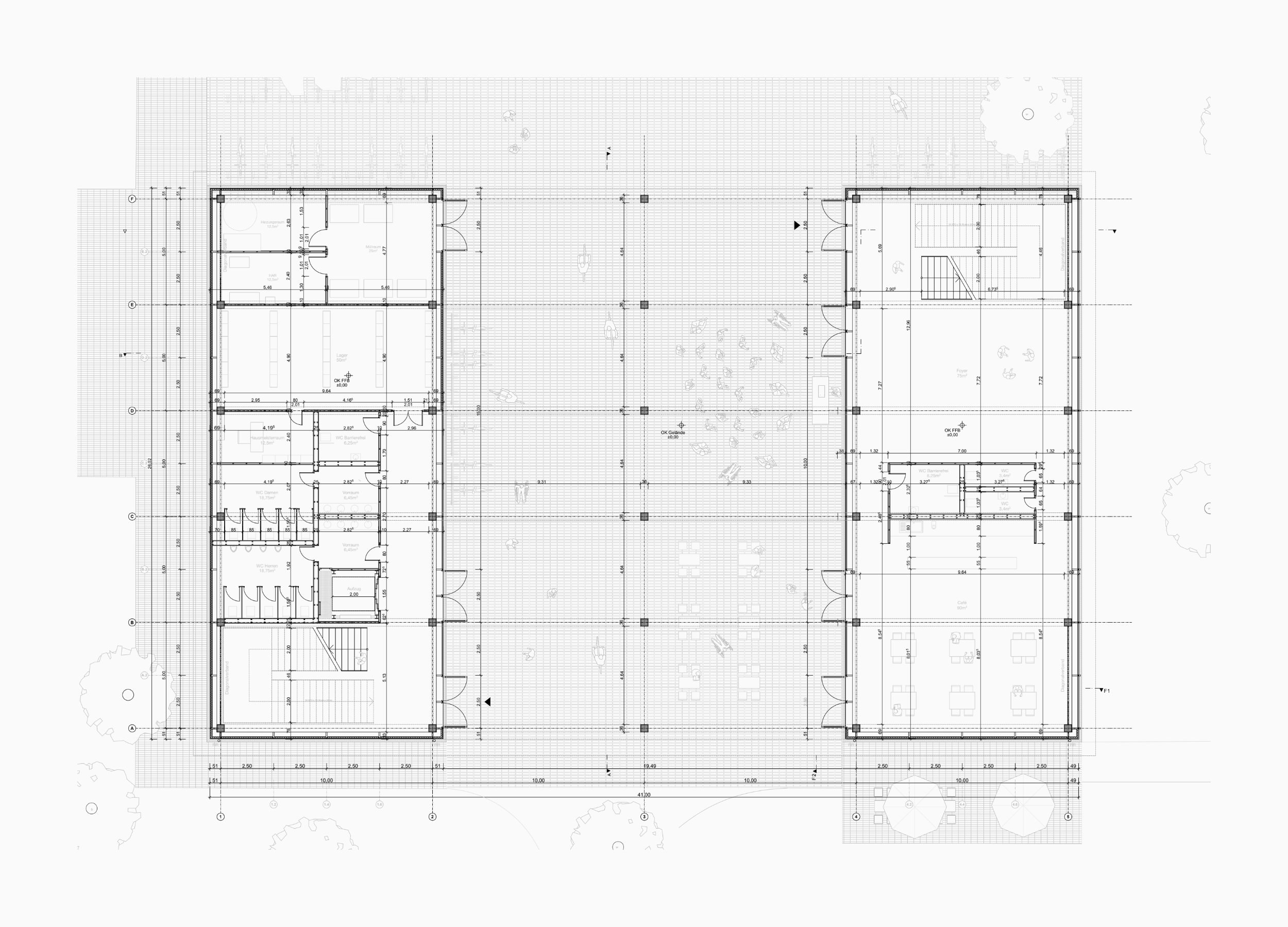
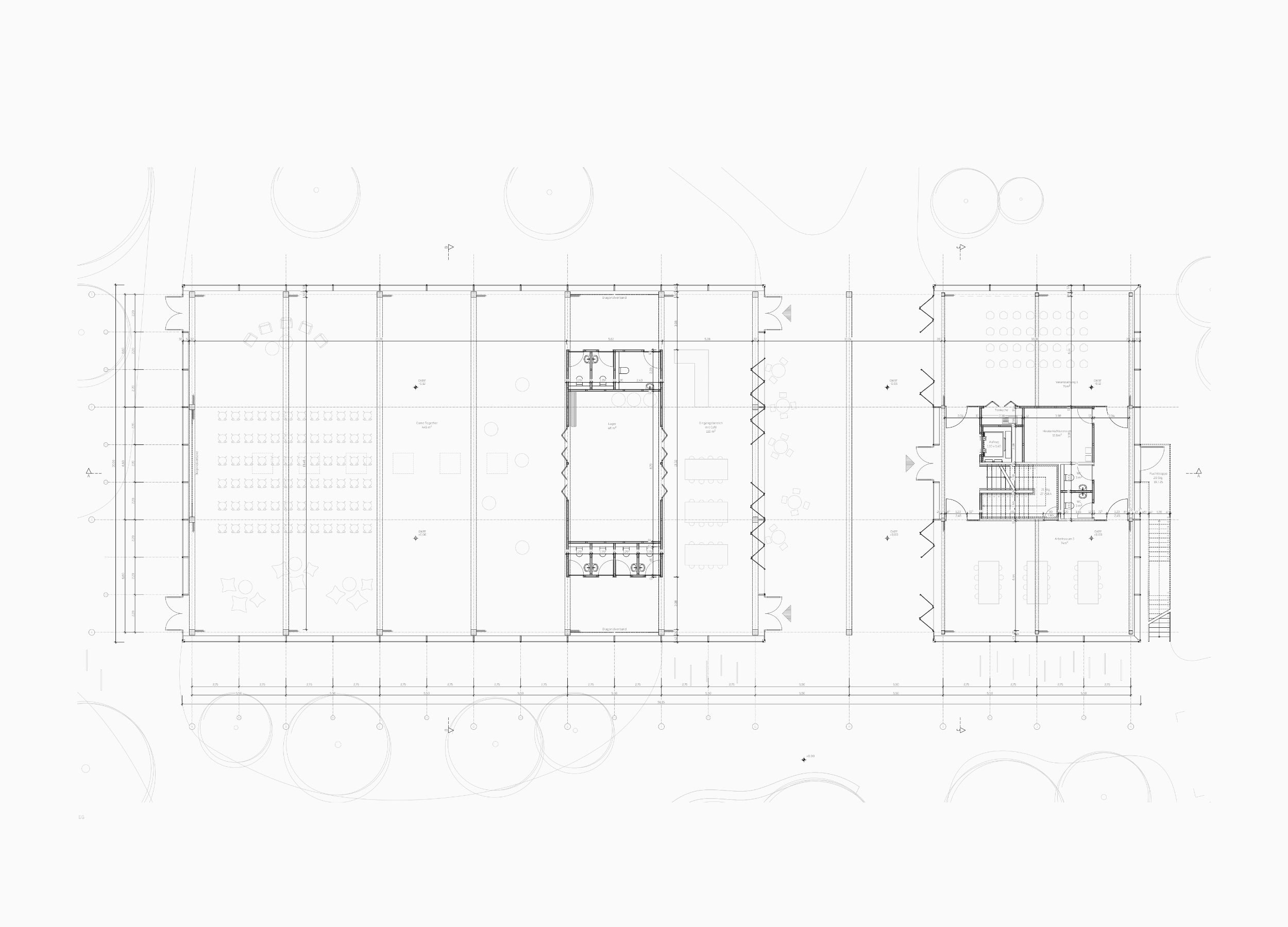
Das Programm sieht einen zentralen Raum vor, der eine flexible Gestaltung des Grundrisses ermöglicht. Der offene, wenig determinierte Raum, bietet den Studierenden und Mitarbeitenden Platz, sich zu treffen und ihre Freizeit in kleineren Gruppen zu verbringen oder auch größere Veranstaltungen durchzuführen. Weitere Nutzungen, wie studentische Arbeitsräume und kleinere, in sich abgeschlossene Veranstaltungsräume sind strategisch in das Funktionsprogramm eingebettet und sollten über das gesamte Gebäude sinnvoll verteilt werden.
| Nutzung | Fläche |
| 1.1 Eingang | 40,0 m2 |
| 1.2 Café | 80,0 m2 |
| 1.3 Hausmeisterraum | 10,0 m2 |
| 1.4 WC | 40,0 m2 |
| 2.1 Multifunktionale Fläche | 500,0 m2 |
| 2.2 Arbeitsräume | 150,0 m2 |
| 2.3 Veranstaltungsräume | 150,0 m2 |
| 2.4 Lager | 100,0 m2 |
| 3.1 Hausanschlussraum | 12,5 m2 |
| 3.2 Heizungsraum | 12,5 m2 |
| 3.3 Raumlufttechnik | 75,0 m2 |
| 3.4 Müll / Container | 50,0 m2 |
| Summe | 1220 m2 |
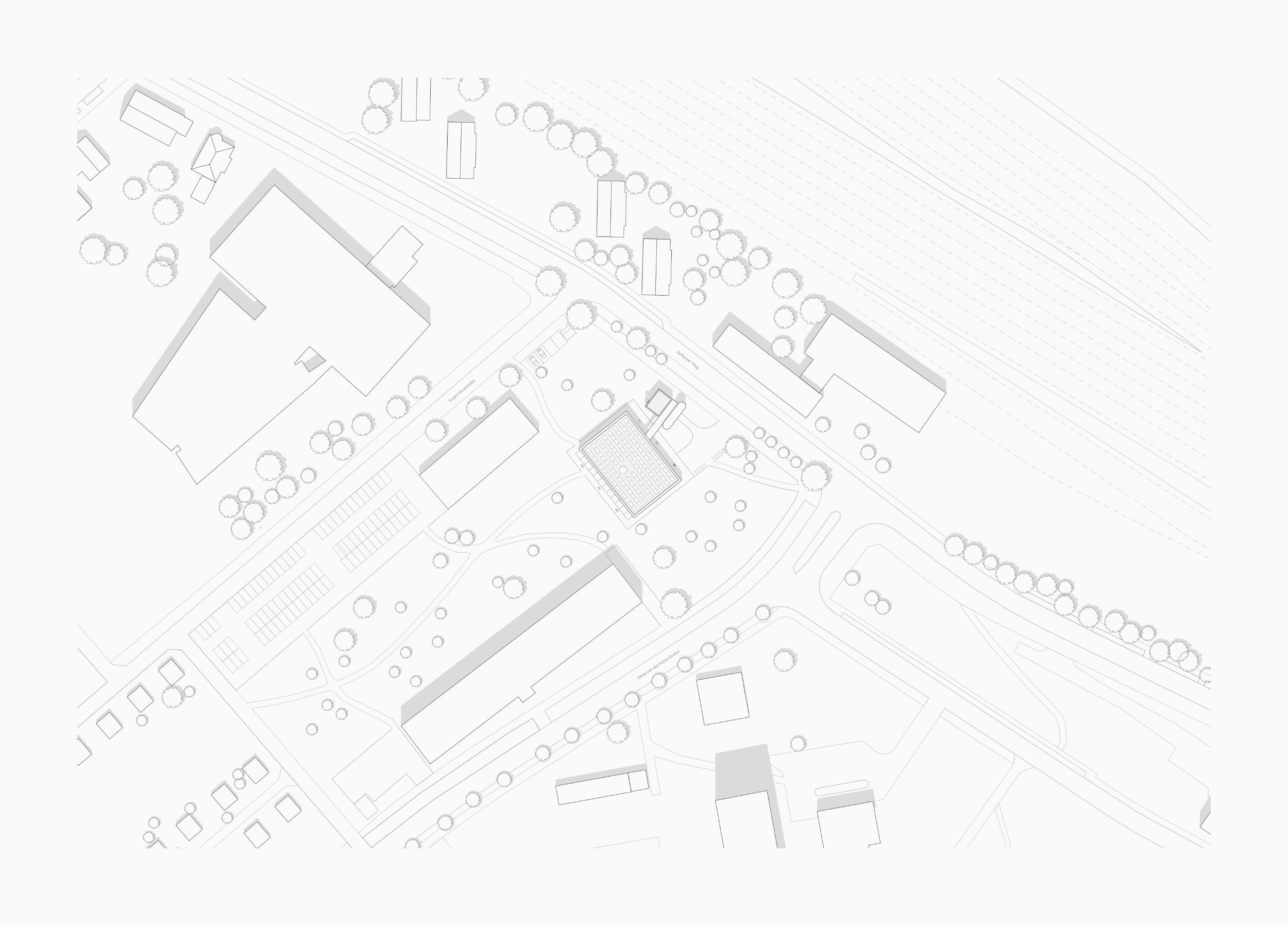
Ort

Das Grundstück befindet sich an der Ecke zwischen Seffenter Weg und Mies-van-der-Rohe-Straße. Es liegt in unmittelbarer Nähe zum Bahnhof Aachen West, der eine umfassende Verkehrsanbindung im Nah- und Fernverkehr bietet. Dadurch eignet sich die Lage ideal, um den Standort als attraktiven Treffpunkt für Studierende und Mitarbeiter zu gestalten. Die Baufläche ist als Fläche besonderer funktionaler Prägung für Bildung und Forschung bezeichnet und für Institute der RWTH Aachen vorgesehen.
Das Baufeld liegt auf der Fläche zwischen Mies-van-der-Rohe-Straße und Kopernikusstraße und hat ungefähre Abmessungen von 93 x 40 m. Die Topografie des Grundstücks kann vernachlässigt werden.
Ausgewählte Arbeiten:




























































































