M1 . WS 20/21 . Holz Hoch Haus
Die Wohnungsfrage ist aktuell und in den kommenden 10 bis 15 Jahren eine der entscheidenden Herausforderungen von Städten und Kommunen. Insbesondere Großstädte, Ballungsräume, aber auch sogenannte mittelgroße Schwarmstädte haben einen erheblichen Mangel an bezahlbarem und dennoch qualitätivem Wohnraum. Konnte in den 1960er und 70er Jahren das Problem der Wohnungsknappheit noch mit großangelegten staatlichen Bauprogrammen und daraus resultierenden Großprojekten und Stadterweiterungen zumindest quantitativ gelöst werden, sind heute die Rahmenbedingungen unter denen städtische Entwicklung und Wohnraumproduktion stattfindet deutlich komplexer. Nutzungsmischung ist wieder zu einem wesentlichen Qualitätsmerkmal bei der Quartiersentwicklung geworden und die stark ausdifferenzierten Lebensmodelle in der heutigen Gesellschaft verlangen nach anderen, weniger standardisierten Angeboten im Wohnungsmarkt. Auf der baulich, architektonischen Ebene sind wir konfrontiert mit Fragen der Nachhaltigkeit, die von der energetischen Performance des Gebäudes im Betrieb bis hin zu den verwendeten Baustoffen und deren Transport und Montage geht.
Mit den beiden Erweiterungsgebieten Campus Melaten und Campus West verfügt die RWTH Aachen über ein enormes bauliches Potenzial für die zukünftige Entwicklung. Während der Campus Melaten aufgrund der geringen Nutzungsmischung als neues Universitäts- und Stadtquartier kaum städtische Qualitäten aufweist, sieht der im vergangenen Jahr aufgestellte Masterplan für den Campus West eine deutlich größere Nutzungsmischung vor, die den neuen Stadtteil zu einem attraktiven und belebten Quartier machen soll. Unter anderem soll durch deutlich mehr Wohnnutzung und Ladenlokale, Gastronomie und Gewerbe in den Erdgeschosszonen der Campus West ein attraktiver Stadtteil werden. Der Masterplan sieht überwiegend eine Blockstruktur mit einzelnen Hochpunkten vor. Einer dieser Hochpunkte, ein zwölfgeschossiges Hochhaus am stillgelegten Ringlokschuppen, soll im Rahmen des M1-Projekts bearbeitet werden. Konkret soll ein Haus für unterschiedliche Nutzergruppen (Studierende, Familien, Wohngemeinschaften) mit einigen ergänzenden Nutzungen wie Gastronomie und Gewerbe geplant werden. Im Fokus steht dabei die Auseinandersetzung mit nachhaltigen Entwurfs- und Konstruktionsstrategien. Holz als Konstruktionswerkstoff, weitgehende Vorfertigung der baulichen Elemente und eine intelligente Einfachheit sind dabei die Leitthemen des Projekts. Gleichzeitig sollen die Themen Nachhaltigkeit und Einfachheit bei der Betrachtung der energetischen Performance und Nutzerbehaglichkeit eine besondere Rolle spielen.
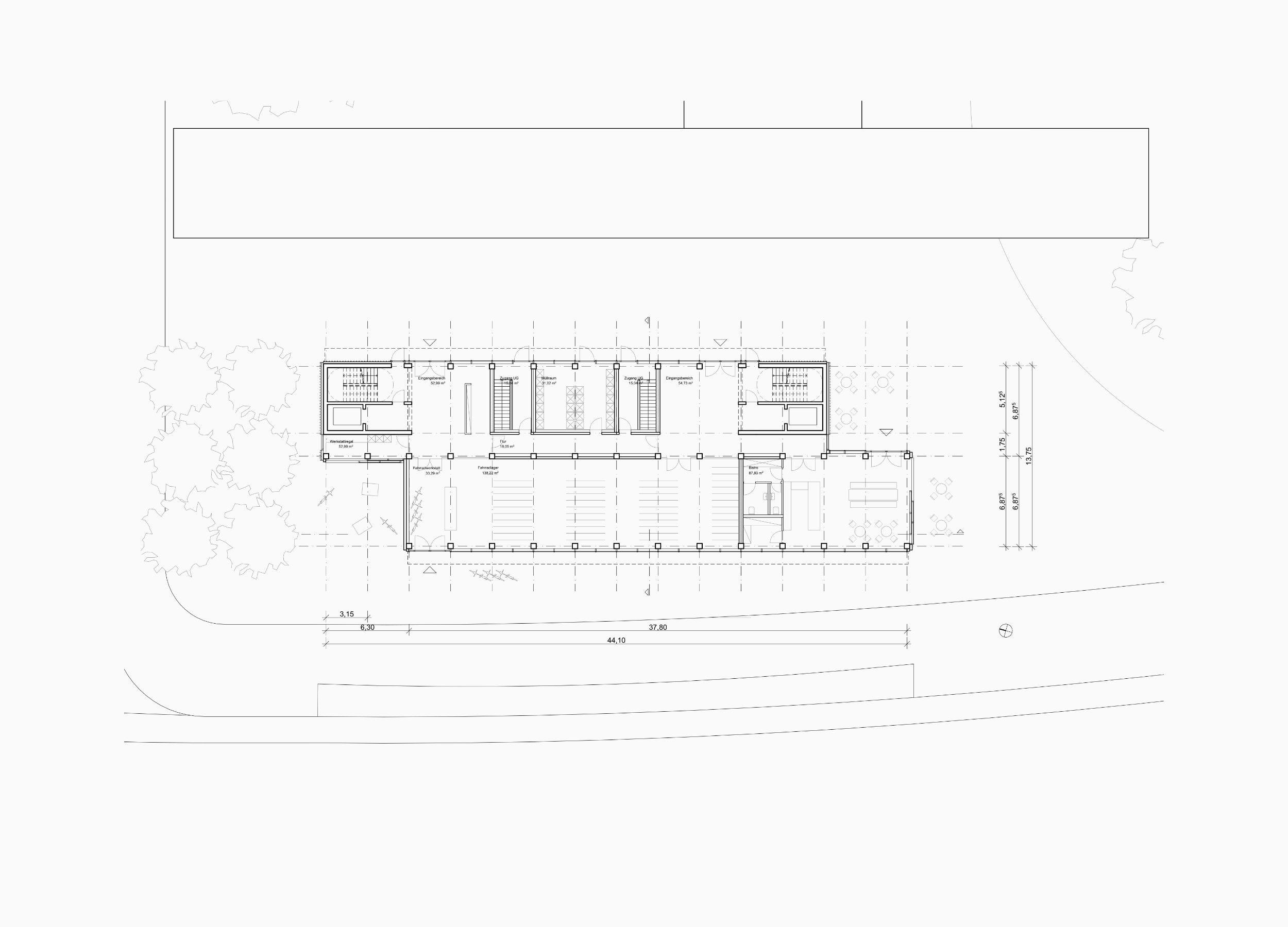
Aufgabe ist die Konzeption, Entwurf und Konstruktion eines Wohn-Hochhauses im Campus West. Neben unterschiedlichen Wohnungstypen, die verschiedene Arten des Wohnens bedienen, sind weitere Funktionen des gemeinschaftlichen Lebens, wie Arbeitsräume / Ateliers, Freibereiche und in der Erdgeschosszone gewerbliche Nutzungen wie Gastronomie und Läden vorzusehen. Dem Erdgeschoss kommt eine besondere Bedeutung zu, da es maßgeblich zur Adressbildung des Hauses beiträgt und den Grad an Öffentlichkeit des Gebäudes definiert. Für das Tragwerk aber auch die Hüll- und Ausbaukonstruktion sollen vorwiegend Holz oder Holzwerkstoffe verwendet werden. Eine Auseinandersetzung mit den Themen der Vorfertigung ist damit zwingend notwendig. Ein dem Entwurfskonzept entsprechendes Raumklima- und Energiekonzept soll auf die Bedürfnisse der Nutzer*innen in den einzelnen Funktionsbereichen eingehen. Darüber hinaus sind die spezifischen Anforderungen eines Hochhauses zu beachten. Diese finden sich in der aktuellen Sonderbauverordnung (SBauVO) des Landes NRW §§ 93-120. Von besonderer Bedeutung sind hier die Themen Vertikalerschließung, Rettungswege und Feuerwiderstands-Anforderungen an Bauteile.
Ort

Der Campus West ist neben dem Campus Melaten das zweite große Hochulerweiterungsgebiet der RWTH Aachen. Seit Sommer 2019 liegt ein überarbeiteter Masterplan für den Campus West vor, der von der Stadt Aachen und der Campus GmbH verabschiedet wurde. Dieser Masterplan sieht einen städtebaulichen Auftaktpunkt im südöstlichen Ende des Gebiets vor. Dort soll neben einer Kongresshalle und einem Hotel auch die Haupterschließungsachse, das sogenannte Campusband, seinen Auftakt finden. Diese Haupterschließung verläuft in Richtung Nordwesten weitgehend parallel zur Bahntrasse und wird von einer Blockrandbebauung gesäumt. Etwa auf Höhe der neuen Wohnbebauung “guter Hirte” trifft das Campusband auf die Bahngleise und verläuft dann weiter parallel hierzu vorbei am denkmalgeschützten, alten Ringlokschuppen. Hier sieht der Masterplan einen Hochpunkt in Form eines zwölf- bis fünfzehngeschossigen Gebäudes vor.
Das Baufeld liegt auf der Fläche westlich des Ringlokschuppens und hat eine Größe von ca. 600 m2.
Ausgewählte Arbeiten:


















Lehrpersonen:
Prof. Hartwig Schneider
Sophie Schulten M.Sc.
Dr. Christian Schätzke
Kooperationspartner:
Univ.-Prof. Dr. Marcel Schweiker














