M2 . WS 22/23 . zirkulär

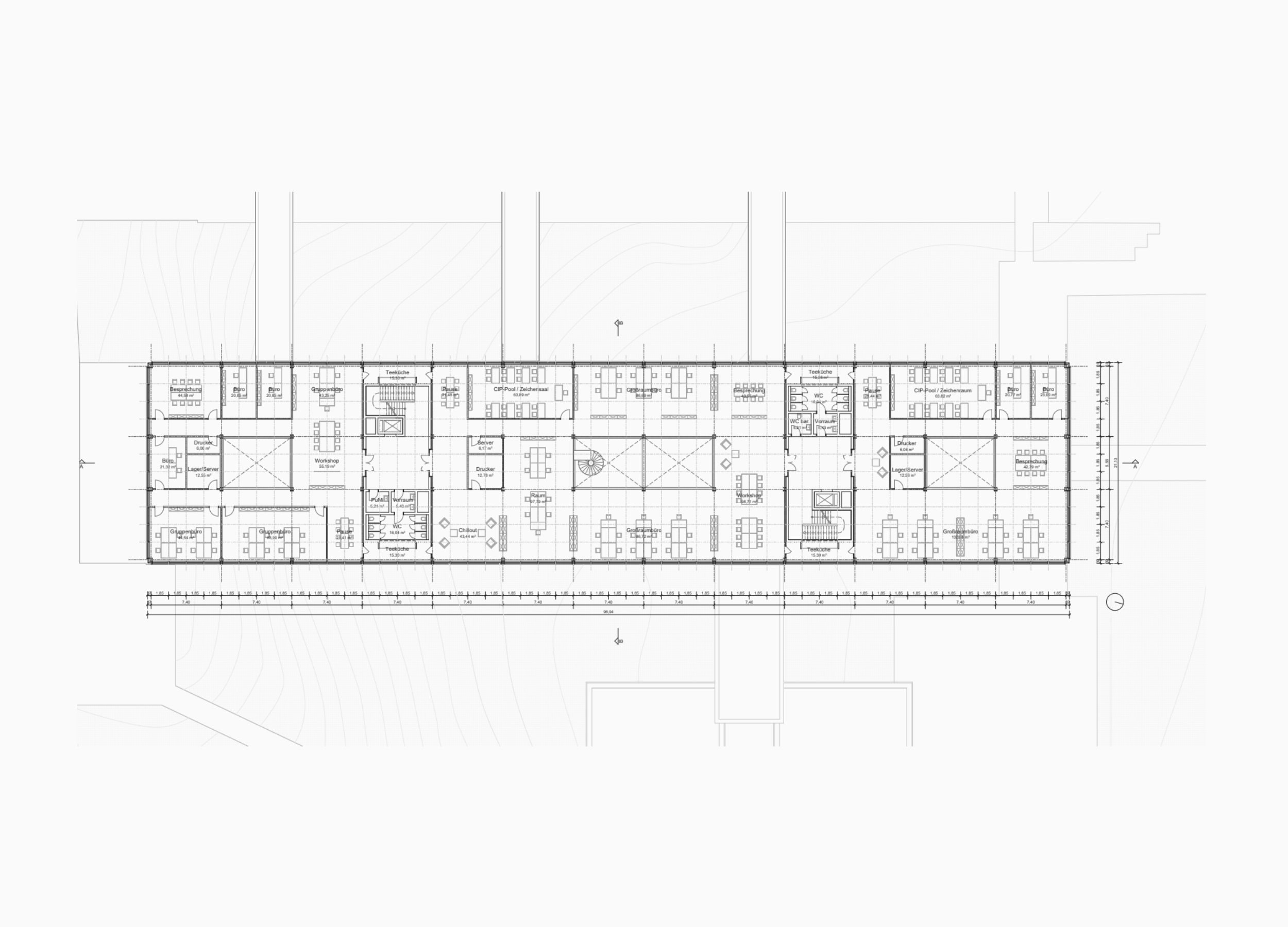
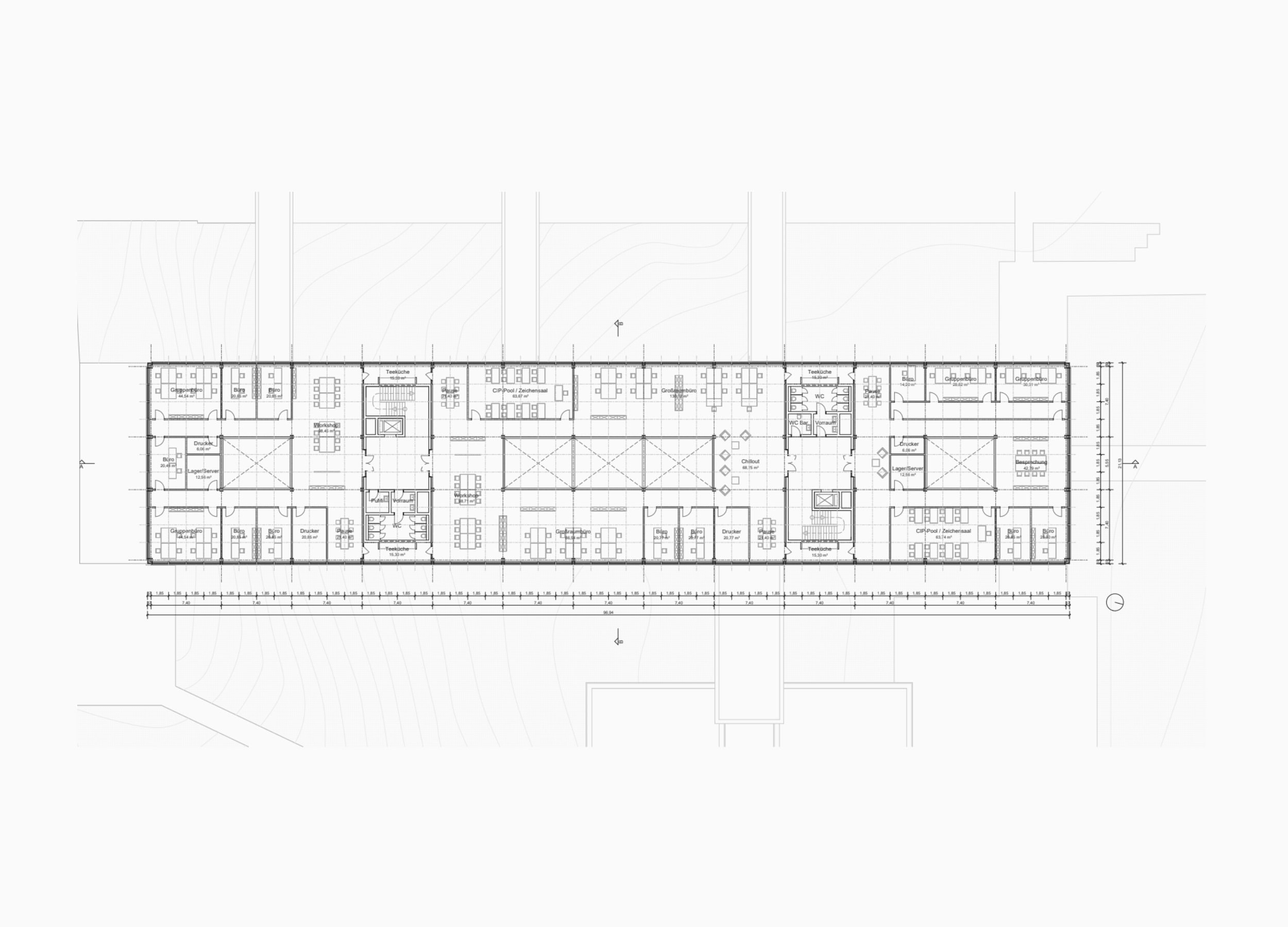
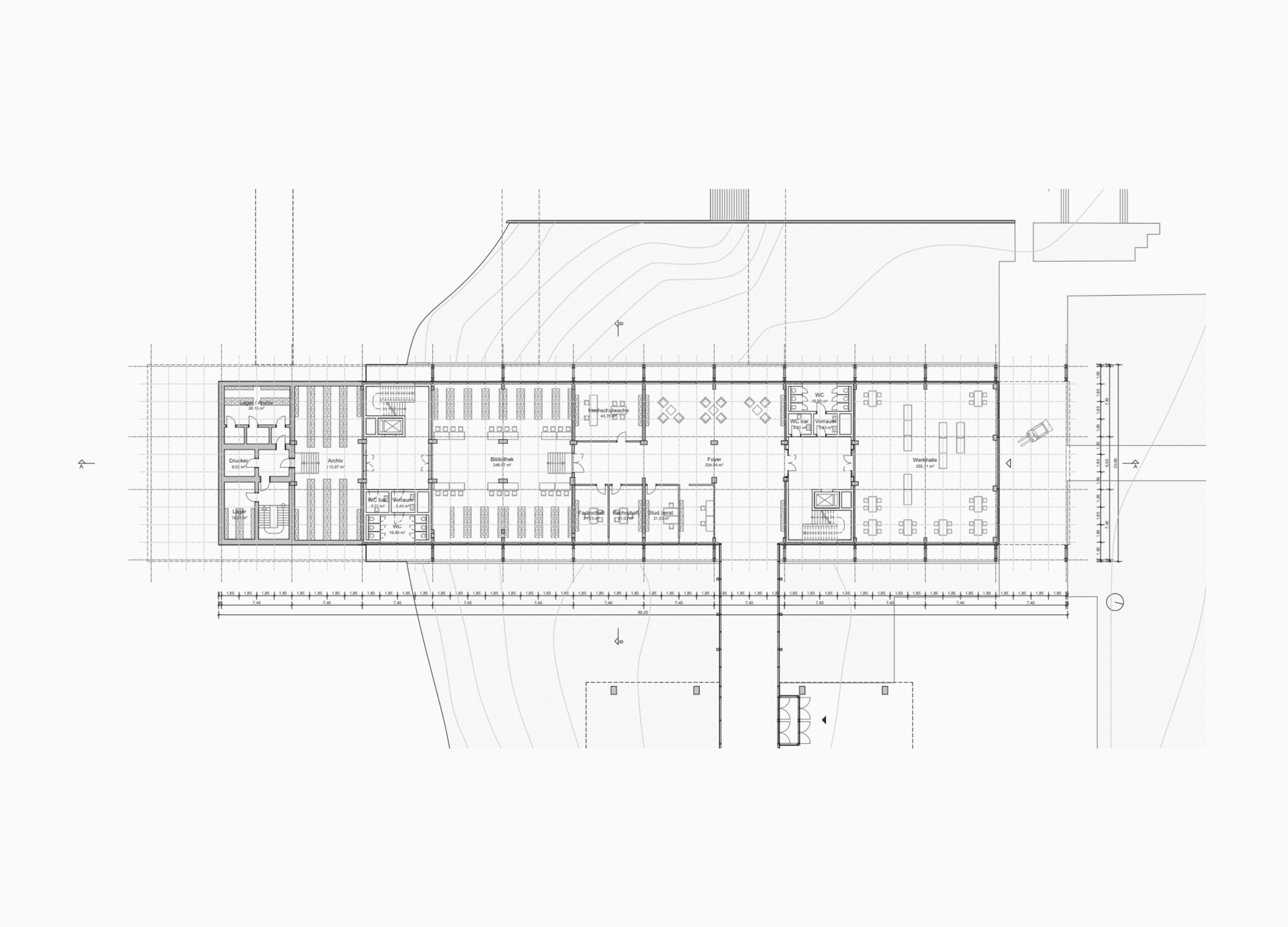
Mit ihren über 4000 Studierenden und mehr als 25 Lehrstühlen und An-Instituten zählt die Fakultät für Bauingenieurwesen zu den größten und ältesten der Hochschule. Ihr Sammelbau liegt zwischen der Mies-van-der-Rohe-Straße und der Professor-Pirlet-Straße am Hang des Königshügels. Das Ensemble besteht aus dem zentralen 8-geschossigen Hauptgebäude, welches Büronutzungen und Bibliotheken Institute, sowie der Seminarräume beherbergt, zwei ausgelagerten, durch verglaste Gänge angeschlossenen Hörsälen im Osten und vier durch überdachte Stege kammartig angeschlossene Hallenriegel im Westen.
Die Fakultät für Bauingenieurwesen der RWTH Aachen benötigt ein neues Fakultätsgebäude als Ersatz für das aufgrund angenommener konstruktiver Mängel nicht mehr (vollständig) nutzbare Gebäude aus
den 1960er Jahren. An gleicher Stelle wie zuvor soll ein Neubau mit leicht verändertem Programm unter Berücksichtigung der Kreislauffähigkeit seiner Bauteile und/oder Baustoffe errichtet werden. Ziel ist eine (erneut) schlüssige Gesamtkonzeption für das Ensemble und den neuen Bauteil zu finden. Die beiden im Osten angeschlossenen Hörsäle und die im Westen liegenden Hallenbauten sind zu erhalten.
Die Kreislauffähigkeit kann hier konzeptabhängig unterschiedliche Ausprägungen annehmen. Zur Einschätzung des Kreislaufpotenzials ist ein Bauteilkatalog zu erstellen. Neben der Kreislaufgerechtigkeit sollte der Neubau weiteren Anforderungen an ein zeitgemäßes Institutsgebäude der Universität Aachen genügen: Gemeint sind hier insbesondere die langfristige Anpassungsfähigkeit der räumlichen Struktur, sehr gute Arbeitsbedingungen mit hoher räumlicher Qualität durch angemessene Raumproportionen, Oberflächen sowie vorrangig natürlicher Belichtung, Belüftung und außenliegendem Sonnenschutz.

Ausgewählte Arbeiten:





























































Lehrpersonen:
Prof. Hartwig Schneider
Roman Krükel
Sophie Schulten
Benedikt Surmann